Oława

Dom na sprzedaż

Opis nieruchomości

Oferta dostępna na wyłączność w biurze BESTATE  Nieruchomości Wrocław.

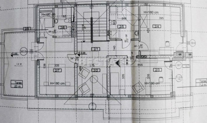
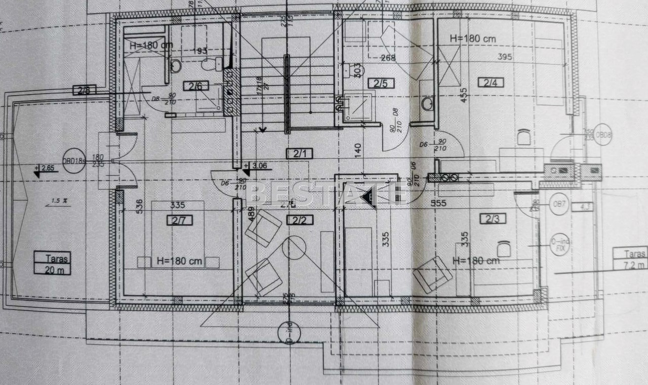
BESTATE nieruchomości Wrocław oferuje do sprzedaży dom wolnostojący, parterowy z poddaszem użytkowym o powierzchni 198,30 m. kw, położony na działce o pow. 2000 m.kw., usytuowany w miejscowości Stary Górnik, około 5km od Oławy w zaciszu zieleni. Dom nowy , prawie w całości wykończony ( brakuje tylko podłogi w salonie i kuchni). Parter domu (124,6 m.kw) składa się z pokoju dziennego o pow. 31 m.kw, kuchni i jadalni o pow. 16 m.kw, pokoju o pow. 9 m.kw, wc, korytarza o pow. 11,2 m.kw, wiatrołapu oraz kotłowni o pow. 7 m.kw. Z garażu obecnie zrobione jest mieszkanie o pow. 38,2 m.kw ( składające się pokoju, kuchni i wc - można zrobić osobne wejście i mieć niezależne mieszkanie). Poddasze (73,7 m.kw)  składa się z  sypialni z osobną łazienką (16 m.kw) i dużym tarasem oraz dwóch pokoi po 14,2 m.kw, garderoby o pow. 8 m.kw, korytarza o pow. 9,3 m.kw i łazienki.  Budynek z rozpoczętą budową w 2012 roku, zbudowany z porothermu. Media: prąd, siła, woda z sieci, kanalizacja-przepompownia, rozprowadzone instalacje pod alarm, domofon, telewizję, komputer, kominek. Dach pokryty dachówką, docieplony, stropy żelbetonowe. Ogrzewanie podłogowe- piec na pelet ( dodatkowo w łazienkach grzejniki) Okna aluminiowe, z ekspozycją na wszystkie strony świata. Dojazd 30 m.kw drogą utwardzoną. 
Możliwość dwóch  osobnych, niezależnych  mieszkań.

Cena: 1 400 000 zł ( do negocjacji)

Zapewniamy kompleksową obsługę, najlepsze kredyty hipoteczne, bezpieczną transakcję. Jesteśmy z Tobą na każdym etapie zakupu, od prezentacji do przekazania kluczy. Stan prawny uregulowany, dokumenty dotyczące w/w oferty do wglądu.

Kontakt:

Renner Agnieszka

BESTATE Wrocław

tel: 602 459 354

e-mail: arenner@bestate.com.pl

Nr licencji: 22004

www.bestate.com.pl

Nota prawna

Opis oferty zawarty na stronie internetowej sporządzany jest na podstawie oględzin nieruchomości oraz informacji uzyskanych od właściciela, może podlegać aktualizacji i nie stanowi oferty określonej w art. 66 i następnych K.C.

Szczegóły oferty

Symbol oferty BESW-DS-13759
Powierzchnia 198,30 m²
Powierzchnia użytkowa 198,30 m²
Powierzchnia działki 2 000 m²
Liczba pokoi 5
Rodzaj domu wolnostojący
Technologia budowlana porotherm
Garaż w bryle
Okna aluminiowe
Instalacje nowe
Zagosp. działki niezagospodarowana
Ukształtowanie działki lekko nachylona
Kształt działki prostokąt
Pokrycie dachu dachówka
Stan budynku do wykończenia
Ogrodzenie działki brak
Rok budowy 2012
Woda jest
Ogrzewanie piec dwufunkcyjny
Prąd jest
Kanalizacja miejska
Klucze tak

Pomieszczenia

Powierzchnia pokoi 31+16+14+14+9 m2
Podłogi pokoi parkiet
Rodzaj kuchni jasna z oknem
Powierzchnia kuchni 16 m2
Podłoga kuchni parkiet
Liczba łazienek 2
Powierzchnia łazienki 6+3 m2
Glazura łazienki glazura
Podłoga łazienki gres
Liczba WC 1
Powierzchnia WC 1,5 m2
Glazura WC glazura
Podłoga WC gres
Liczba przedpokoi 2
Powierzchnia przedpokoi 11+9 m2

Lokalizacja

Kalkulator kredytowy

PLN
%
Wysokość raty

Kalkulator kosztów

PLN
PLN
PLN
PLN
PLN
PLN
%
PLN
Podatek od czynności cywilno-prawnych
Taksa notarialna (opłata notarialna)
VAT od taksy notarialnej (opłaty notarialnej)
Wniosek do WKW
VAT od wniosku do WKW
Prowizja agencji nieruchomości
VAT od prowizji agencji nieruchomości
Wypisy aktu notarialnego - około
RAZEM (cena + opłaty)

Napisz do nas

Proszę wypełnić to pole
Proszę wypełnić to pole
Proszę wypełnić to pole
Proszę wypełnić to pole
Trwa wysyłanie...

Ta strona wykorzystuje pliki cookies w celach statystycznych oraz w celu dostosowania naszych serwisów do indywidualnych potrzeb klientów. Zmiany ustawień dotyczących plików cookie można dokonać w dowolnej chwili modyfikując ustawienia przeglądarki. Korzystanie z tej strony bez zmian ustawień dotyczących cookies oznacza, że będą one zapisane w pamięci urządzenia.

rozumiem