Wrocław, Stare Miasto, Szczepin

Mieszkanie na sprzedaż

Opis nieruchomości

BEZPOŚREDNIO od dewelopera, brak prowizji oraz podatku 2% PCC.
Posiadamy ponad 90 inwestycji we Wrocławiu i okolicach, zapytaj o pozostałe.

Bezpłatna pomoc przy kredytowaniu.

Inwestycja w centrum Wrocławia / Szczepin, mieszkania w stanie deweloperskim, planowany odbiór 30.06.2026r. 
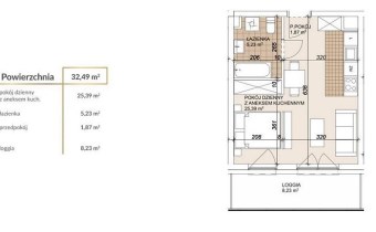
Prezentowane mieszkanie o powierzchni użytkowej 32,49 m.kw,  składa się z salonu z aneksem kuchennym o powierzchni 25,39 m.kw, łazienki o pow. 5,23 m.kw, przedpokoju o pow. 1,87 m.kw. oraz balkonu o pow. 8,23 m.kw
Posiadamy mieszkania od 32,28 m.kw. do 120,26 m.kw. na różnych piętrach.
Świetna lokalizacja! W pobliżu znajdują się sklepy, przystanki tramwajowe i autobusowe, centrum handlowe, przedszkola, szkoły, przychodnia, restauracje, apteka, tereny spacerowe.

Cena: 608 999 zł + miejsce postojowe w garażu podziemnym 
Dostępne komórki lokatorskie 
Zadzwoń, umów się na prezentację.

Kontakt:
Zaremba Monika
BESTATE Nieruchomości Wrocław

tel: 735-244-098

e-mail: mzaremba@bestate.com.pl
Nr licencji osoby odpowiedzialnej zawodowo: 22004
www.bestate.com.pl/wroclaw

Nota prawna

Opis oferty zawarty na stronie internetowej sporządzany jest na podstawie oględzin nieruchomości oraz informacji uzyskanych od właściciela, może podlegać aktualizacji i nie stanowi oferty określonej w art. 66 i następnych K.C.

Szczegóły oferty

Symbol oferty BESW-MS-14300
Powierzchnia 32,49 m²
Powierzchnia użytkowa 32,49 m²
Powierzchnia balkonów/tarasów 8,23 m²
Liczba pokoi 1
Piętro 4
Liczba pięter w budynku 9
Stan lokalu deweloperski
Okna PCV
Instalacje dobre
Balkon jest
Rok budowy 2025
Woda ciepła - miejska
Ogrzewanie C.O. miejskie
Winda tak

Pomieszczenia

Powierzchnia pokoi 25,39 m2
Rodzaj kuchni aneks kuchenny - połączony z salonem
Liczba łazienek 1
Powierzchnia łazienki 5,23 m2
Liczba przedpokoi 1
Powierzchnia przedpokoi 1,87 m2

Lokalizacja

Kalkulator kredytowy

PLN
%
Wysokość raty

Kalkulator kosztów

PLN
PLN
PLN
PLN
PLN
PLN
%
PLN
Podatek od czynności cywilno-prawnych
Taksa notarialna (opłata notarialna)
VAT od taksy notarialnej (opłaty notarialnej)
Wniosek do WKW
VAT od wniosku do WKW
Prowizja agencji nieruchomości
VAT od prowizji agencji nieruchomości
Wypisy aktu notarialnego - około
RAZEM (cena + opłaty)

Podobne oferty

rezerwacja
mieszkanie na sprzedaż - Wrocław, Krzyki, Huby

mieszkanie na sprzedaż

Wrocław, Krzyki, Huby
3 pokoje 65,59 m2 9 986,28 zł/m2
Wirtualny spacer
mieszkanie na sprzedaż - Wrocław, Grabiszyn

mieszkanie na sprzedaż

Wrocław, Grabiszyn
3 pokoje 54,94 m2 10 000,00 zł/m2
mieszkanie na sprzedaż - Wrocław, Stare Miasto, Szczepin

mieszkanie na sprzedaż

Wrocław, Stare Miasto, Szczepin
2 pokoje 48,00 m2 14 562,50 zł/m2
bez prowizji
mieszkanie na sprzedaż - Wrocław, Lipa Piotrowska

mieszkanie na sprzedaż

Wrocław, Lipa Piotrowska
3 pokoje 56,07 m2 11 189,99 zł/m2

Napisz do nas

Proszę wypełnić to pole
Proszę wypełnić to pole
Proszę wypełnić to pole
Proszę wypełnić to pole
Trwa wysyłanie...

Ta strona wykorzystuje pliki cookies w celach statystycznych oraz w celu dostosowania naszych serwisów do indywidualnych potrzeb klientów. Zmiany ustawień dotyczących plików cookie można dokonać w dowolnej chwili modyfikując ustawienia przeglądarki. Korzystanie z tej strony bez zmian ustawień dotyczących cookies oznacza, że będą one zapisane w pamięci urządzenia.

rozumiem