Wrocław, Stare Miasto

Premise for sale

Property description

Property description

Offer no. BESW-LS-15079
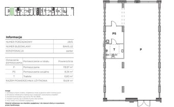
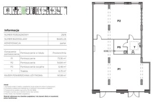
Size 134,91 m²
Usable area 134,91 m²
No. of rooms 1
Floor ground floor
Building type block
Storey 8
Condition Developers
Windows PCV
Fittings vir_listalng_elektryczna
Built in 2019
Premises type one-storey
Premises utility trade - service
Water Heat - city
Lift yes
Location unilateral
Shop window yes
Entrance from the street

Location

Credit calculator

PLN
%
Amount of installment

Cost calculator

PLN
PLN
PLN
PLN
PLN
PLN
%
PLN
Civilian-law commission
Notary commission
Notarial commission VAT
Real-estate register department application
VAT of application for WKW
Real estate agency commission
Real estate agency commission VAT
Extracts of a notarial deed - approx
TOTAL (price+ commissions)

Contact us

Please fill in this field
Please fill in this field
Please fill in this field
Please fill in this field
Sending...

We use cookies to improve your experience on our website. By browsing this website, you agree to our use of cookies.

accept